6 Place St-Pierre, East Angus

En construction
picture icon 9
780 pi2
1
1

Prix budget :

342 200 $ Taxes incluses

Prix calculé avec un terrain et options de base :

- Prix terrain : 50 000 $

- Allocation armoires : 13 500 $

Prix de base excluant terrain et taxes :

222 500 $

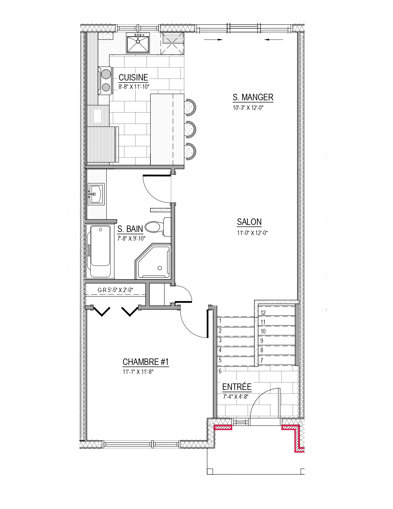
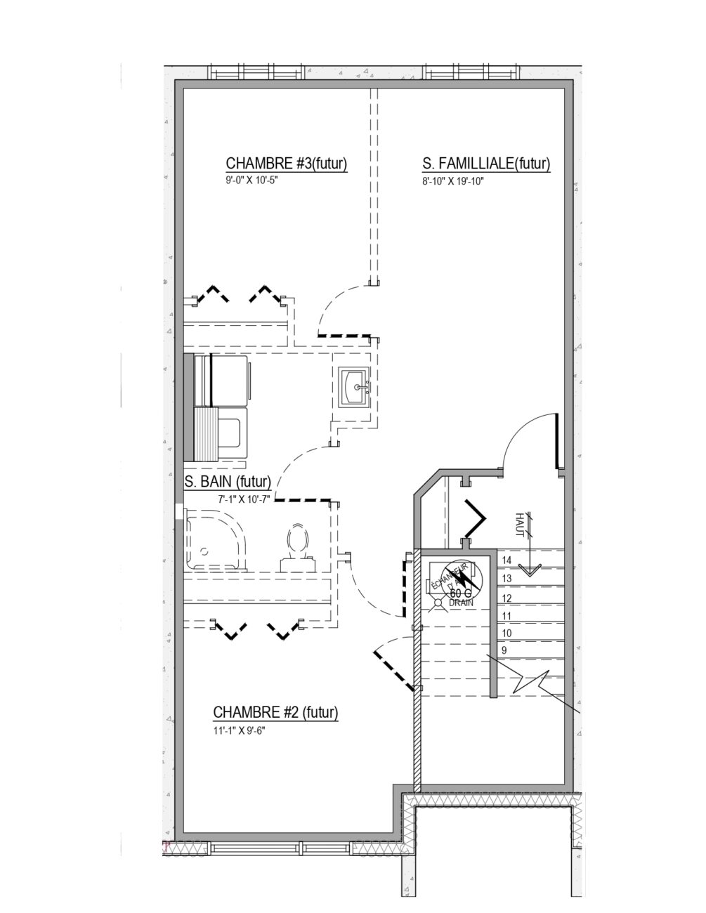
Plan : Laval 4

Lot : 6 515 038

Superficie terrain : 2 203 pi2

Type d'habitation : Maison de ville 1 étage

Dimensions : 20'-0'' (12'-0'') X 38'-0'' (36'-0'')

Rez-de-chaussée : 745 pi2

Prête à habiter : 20 avril 2026

Écrivez-nous

Nom complet
Voir les inclusions

Situé dans le Domaine Haute Rive à East Angus, ce quartier bénéficie d’une localisation stratégique à seulement 15 minutes de Sherbrooke et 20 minutes du CHUS ainsi que des principaux axes routiers.

Un système de transport en commun par minibus facilite les déplacements vers Sherbrooke, rendant ce secteur pratique et accessible.

Proche de tous les services, ce quartier est parfait pour les familles et offre de nombreuses opportunités de loisirs. La ville d’East Angus met à disposition une large gamme de services pour répondre aux besoins de ses résidents :

  • Éducation : 2 écoles primaires et 1 école secondaire.
  • Petite enfance : Un Centre de la Petite Enfance (CPE) et des services de garde en milieu familial.
  • Commodités : Un centre commercial comprenant une épicerie, une pharmacie, un centre dentaire, un centre d’optométrie, ainsi que divers magasins, boutiques et restaurants.

Ce cadre paisible et bien desservi combine les avantages de la proximité urbaine avec une qualité de vie exceptionnelle, idéale pour s’installer et profiter d’un environnement familial et convivial.

 

Terrassement inclus

Patio de 12pi x 12pi en bois traité

Alimentation en eau pour le réfrigérateur

Luminaires

Chauffe-eau de 60 gallons

Thermopompe murale

Robinetterie noire

1 arbre en façade

Alimentation pour borne de recharge pour voiture électrique

Revêtement de plancher en flottant et céramique

Escalier recouvert de tapis

Comptoir de cuisine en Quartz

Hotte de cuisine encastrée 600 CFM

Douche en céramique Néo-Angle 38po

Bain mural - Neptune Pia

 

Maison au design prédéfini sans possibilités de modifications pour une expérience sans tracas !

 

*** La ville d'East Angus offre un programme de soutien financier de 4000$ !

East Angus est heureuse d’offrir un programme de soutien financier pour appuyer les personnes qui décident de s’établir sur son territoire.

Le propriétaire d’une nouvelle résidence unifamiliale, érigée sur le territoire de la Ville de East Angus et dont la construction (après l’émission d’un permis émanant de l’inspecteur municipal) a débuté entre le 1er janvier et le 31 décembre de l’année en cours, est admissible à :

  • Une subvention de remise de quatre mille dollars (4 000$) à compter de l’inscription au rôle de la nouvelle construction, si la valeur au rôle de ladite construction est de 100 000$ ou plus.

Vous aimerez aussi…

Calculateur de versements hypothécaires

Montant du prêt:

Montant mensuel de l’hypothèque :

Montant du prêt:

342 200.00$

Montant mensuel de l’hypothèque :

2 000.47$

Prix sujet à changement sans préavis. Les couleurs, les matériaux et les images intérieures peuvent différer.

Les versements mensuels indiqués par la calculatrice hypothécaire sont fournis à titre indicatif uniquement.