63 Mésanges Street, Windsor

Under construction
picture icon 12
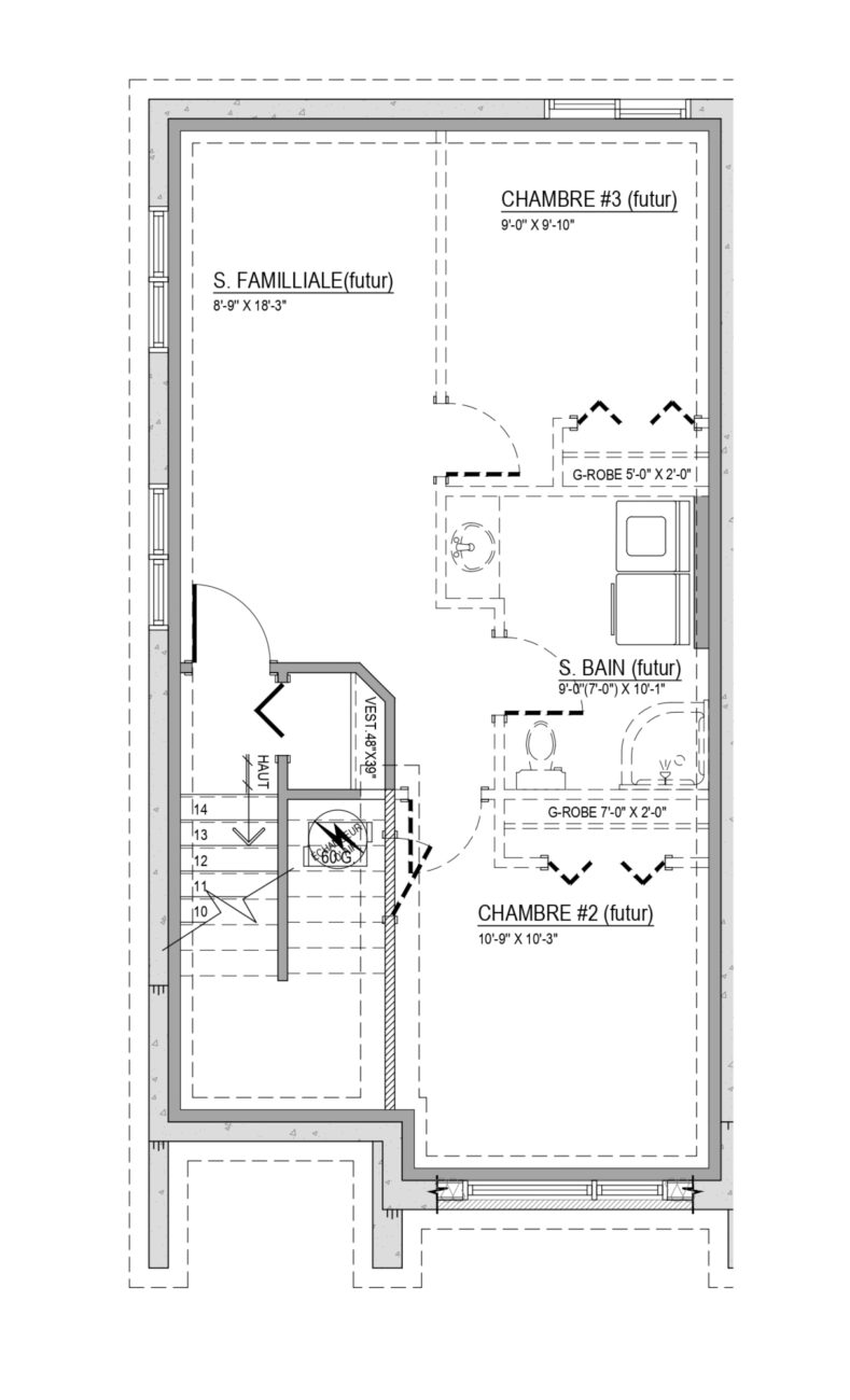
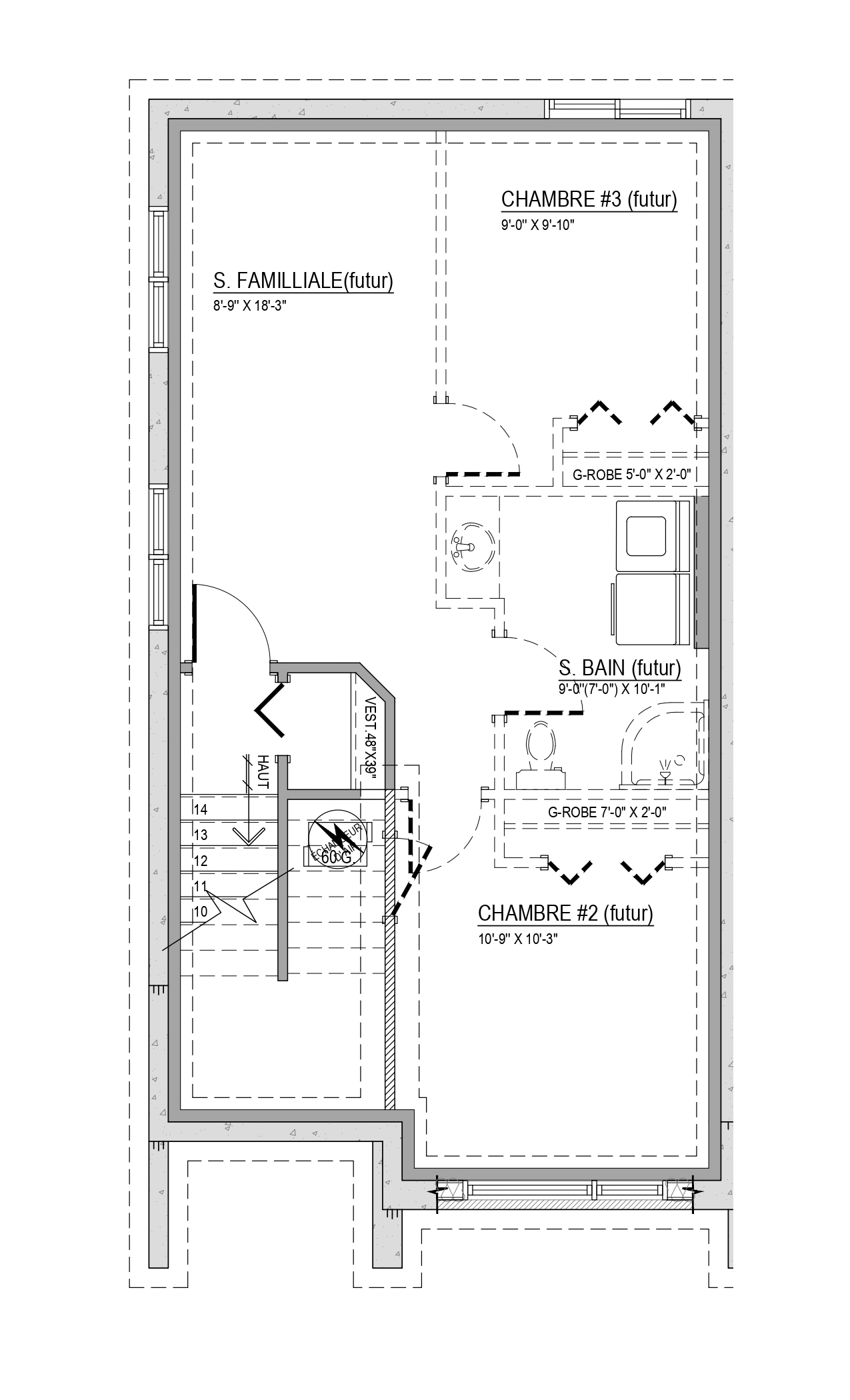
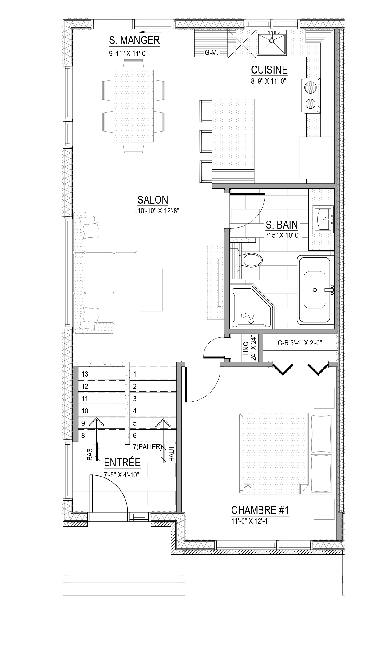
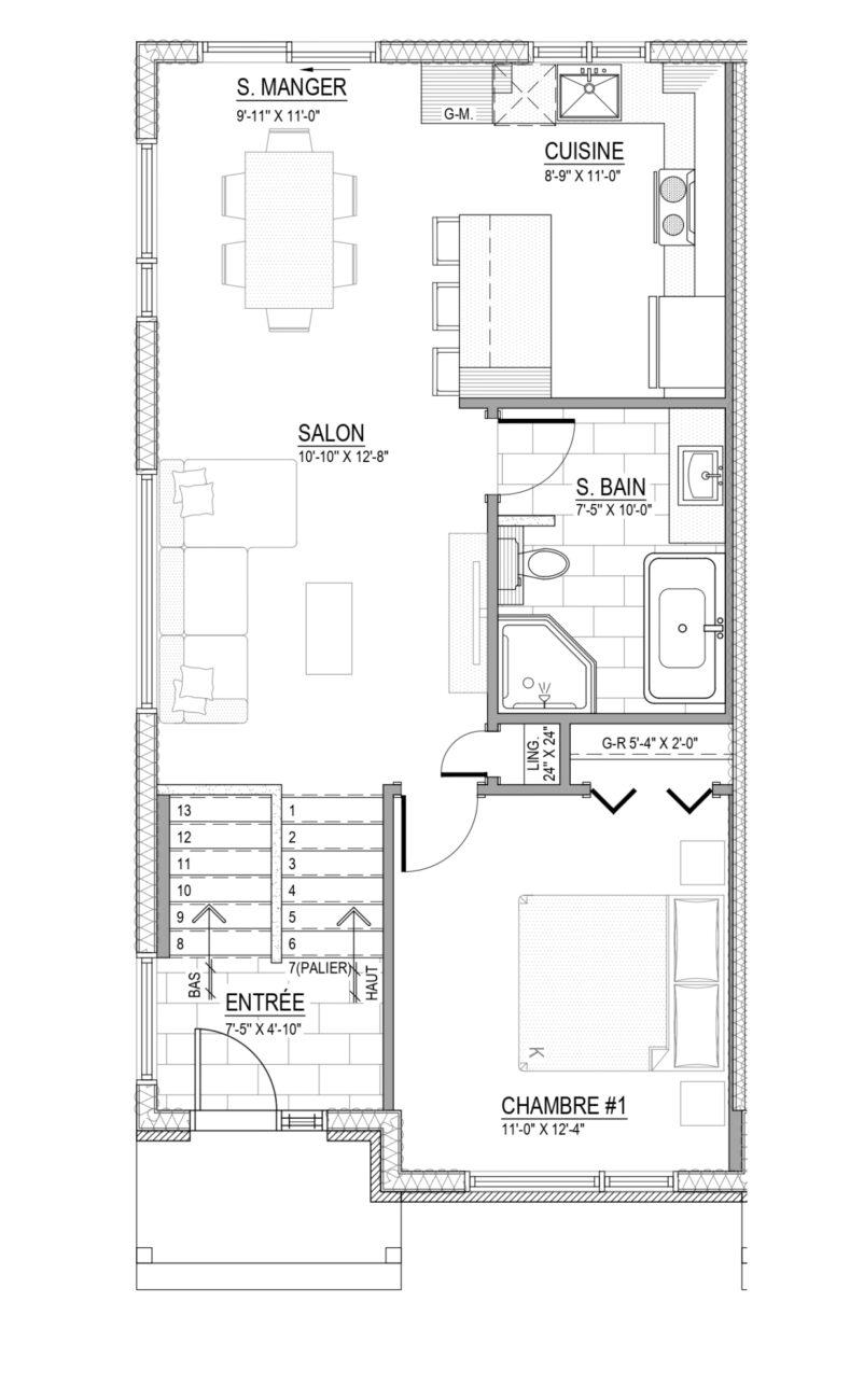
780 pi2
1
1

374 800$

GST Refund
1st buyer only

10 596$

Price

374 800 $
Taxes included

Lot included (value of 90 000 $)

Plan : Laval 4

Lot : 6 681 836

Lot area : 4 108 pi2

Property type : 1-storey townhouse

Dimensions : 20'-0'' (12'-0'') X 38'-0'' (36'-0'')

Ground floor : 745 pi2

Ready to move in : June 24, 2026

Contact us

Full name
See what's included

Windsor — Small-town charm near Sherbrooke

Located just 15 minutes from Sherbrooke, the town of Windsor stands out for its strategic location and warm atmosphere. This residential area combines the tranquility of a small town with access to all the essential services found in a major urban center.

Windsor offers quick access to major highways, making it easy to travel to Sherbrooke, Magog, and Drummondville.

Situated slightly away from the center and surrounded by nature, trails, and the Saint-François River, the Quartier des Papetiers offers a peaceful living environment, ideal for a primary or second home.

The location features rolling hills that lend the area a great deal of charm. Thanks to their elevated position, some lots offer an unobstructed view of a vast horizon.  

The town offers a complete family-friendly environment, with elementary schools, a high school, a daycare center, and several home-based childcare services. In terms of amenities, Windsor provides all essential services: grocery stores, a pharmacy, a health center, restaurants, local shops, and sports facilities.

An Active and Dynamic Lifestyle

Windsor offers a wide range of recreational activities for the whole family. Outdoor enthusiasts can enjoy numerous parks, trails, and bike paths, particularly at the Parc historique de la Poudrière. In winter, cross-country skiing and sledding are very popular there. The town’s sports facilities also allow for the practice of sports such as hockey, baseball, and soccer.

Culturally, Windsor stands out for its library, local events, and seasonal programs offered by the Recreation, Culture, and Community Life Department.

No matter your interests—sports, culture, or the outdoors—there’s something for every taste and every age.

 

Sector Standards:

  • The building must have at least one (1) gable on the facade.
  • The building must have a minimum of fifteen (15) percent masonry/brick cladding on the facade.
  • The following exterior cladding colors are permitted: white, gray, brown, black, and light shades of green, yellow, blue, and red.
  • A maximum of three (3) different types of exterior wall cladding is permitted.
  • The main roof structure must have a slope between 5/12 and 12/12.

 

Earthwork included

12-ft. x 12-ft. treated wood patio

Water supply for the refrigerator

Light fixtures 

60-gallon water heater

Wall-mounted heat pump

Black faucets

1 tree in front

Power supply for electric car charging station

Wood-look click vinyl flooring and ceramic tiles on the ground floor

Carpeted staircase

Quartz kitchen countertop

Built-in 600 CFM range hood

Freestanding ceramic shower 

Wall-mounted bathtub – Mirolin Hessa

Recessed LED outdoor lights

Pre-designed home with no customization options for a hassle-free experience!

You might also like…

Mortgage Payment Calculator

Loan amount:

Monthly mortgage payment:

Loan amount:

374 800.00$

Monthly mortgage payment:

2 191.04$

Prices are subject to change without notice. Colors, materials, and interior images may vary.

The monthly payments shown by the mortgage calculator are for illustrative purposes only.