187 Joseph-Emond Street, Sherbrooke (Brompton)

1 596 pi2
3
1 + 1

781 500$

GST Refund
1st buyer only

33 984$

Price

781 500 $
Taxes included

Lot included (value of 270 000 $)

Plan : Val-Joli

Lot : 6 563 988

Lot area : 106 361 pi2

Property type : 2-storey home

Dimensions : 34'-0'' (16'-6'') X 25'-0'' (17'-0'')

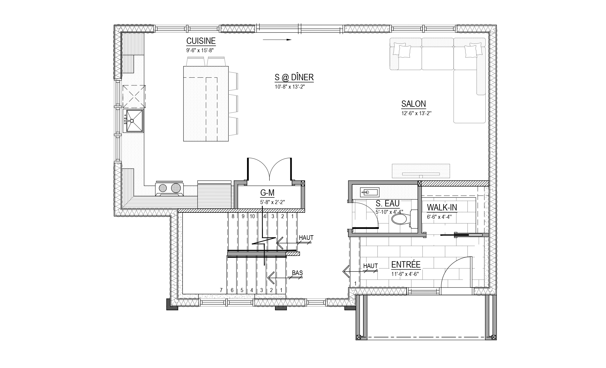
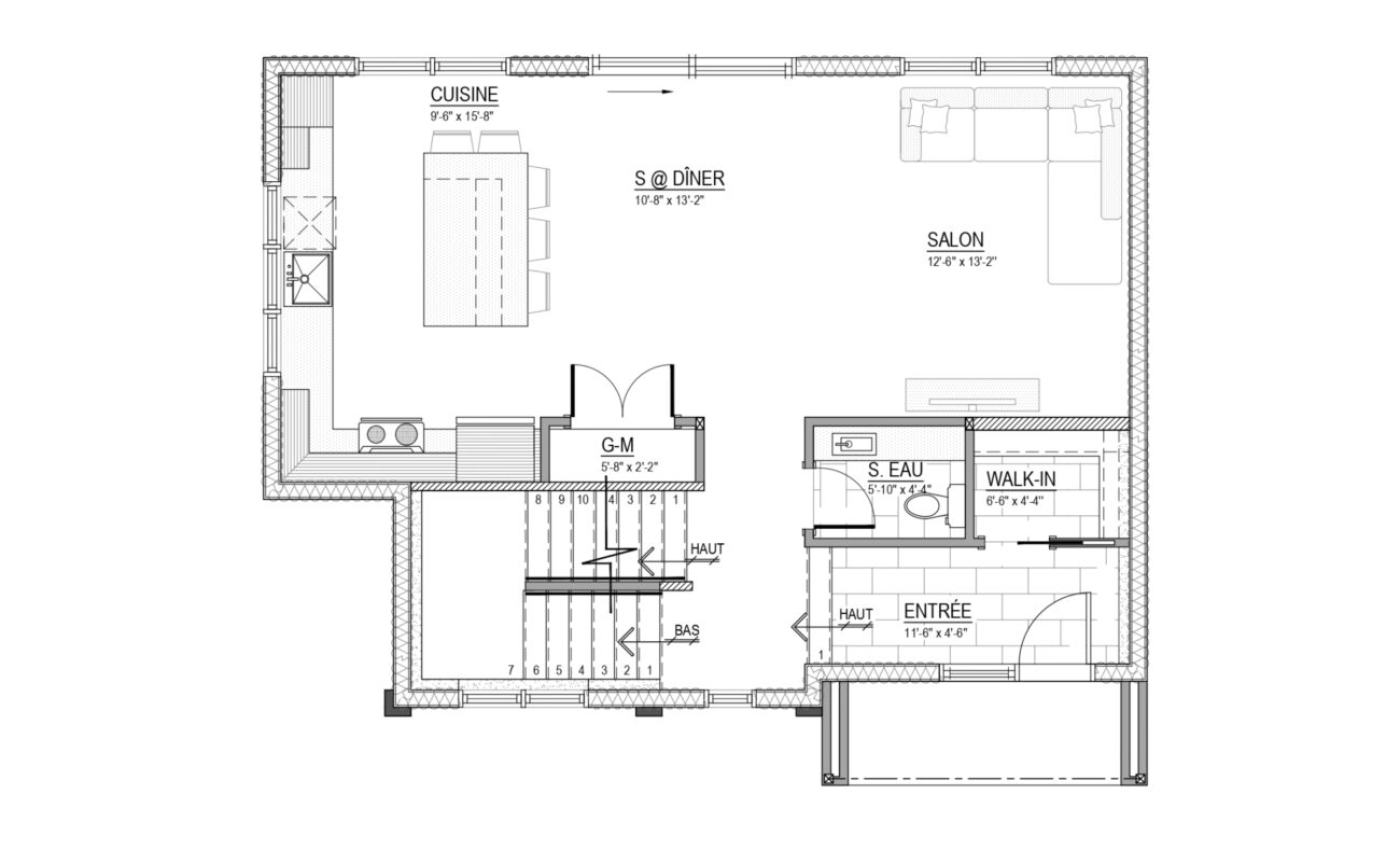
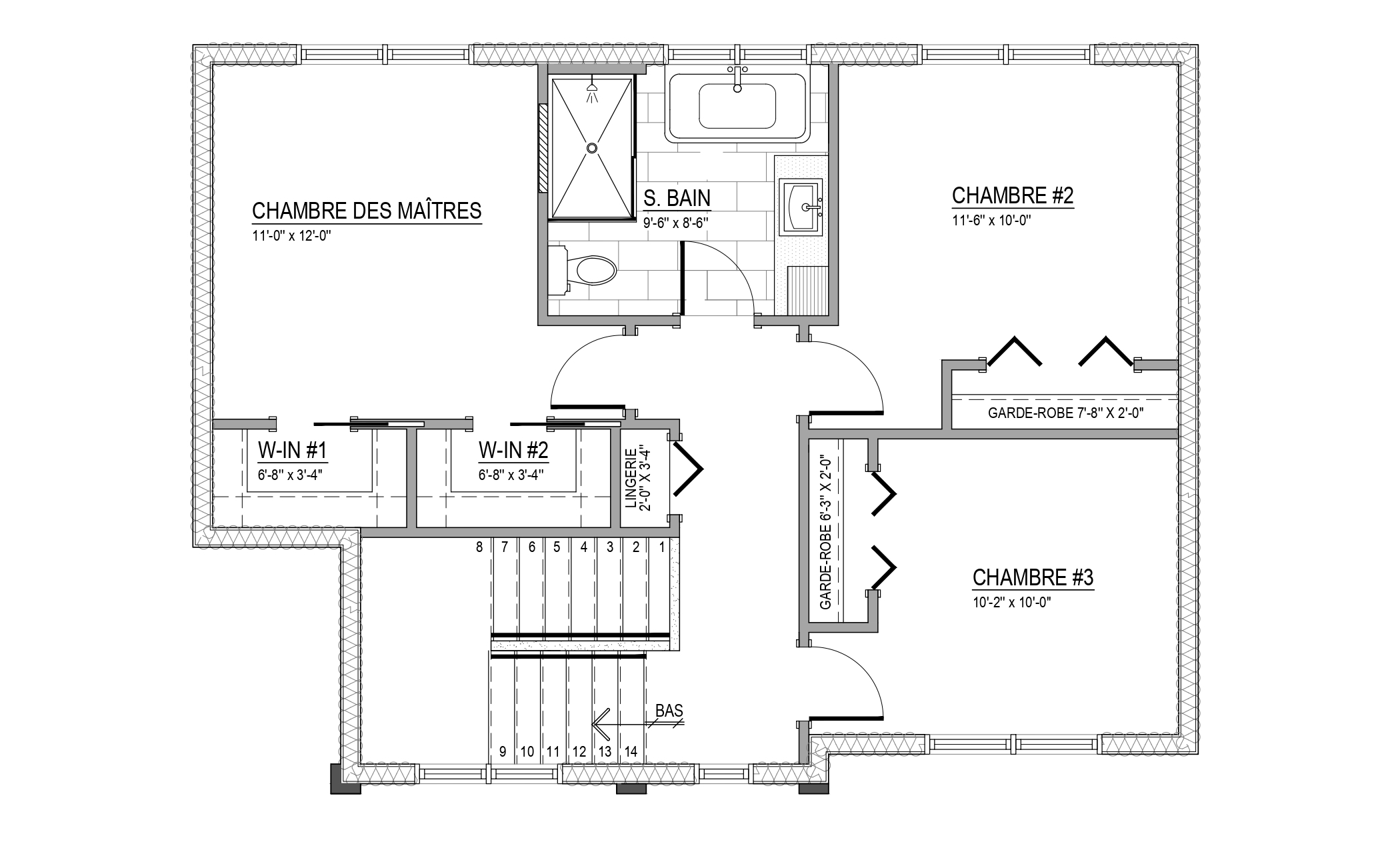
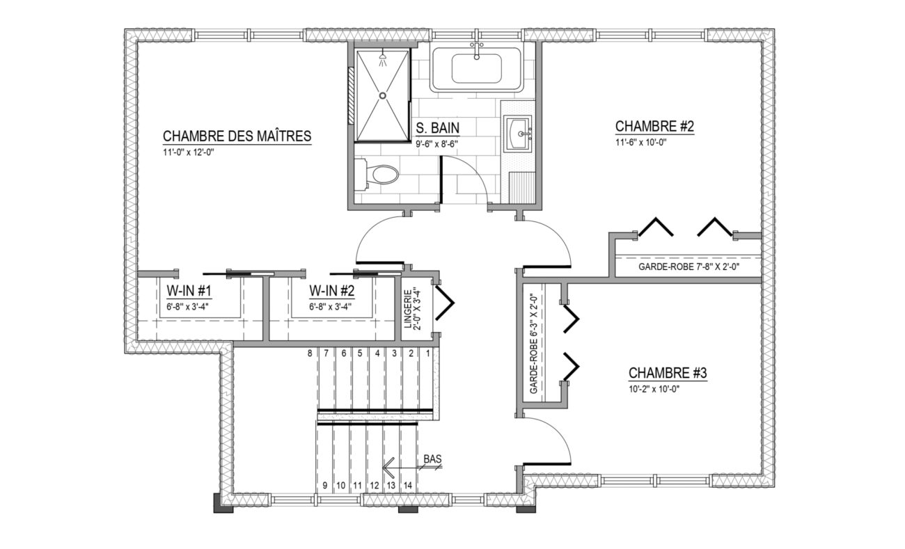
Ground floor : 798 pi2

Floor : 798 pi2

Ready to move in : August 26, 2026

Contact us

Full name
See what's included

Le Havre du Versant is a residential development located near the countryside, just 8 minutes from Plateau St-Joseph. We offer you the opportunity to build a single-family home or a townhouse in a peaceful setting that’s ideal for family life. This neighborhood, bordered by a park and close to all essential services, perfectly combines comfort and accessibility.

In fact, Bromptonville boasts a wide range of amenities just a few minutes’ walk from one another: grocery stores, pharmacies, restaurants, elementary and high schools, financial services, an arena, a municipal library, a community center, an industrial park, and much more.

If you’re looking for a harmonious living environment that combines urban conveniences with a natural setting, Bromptonville is the perfect place for you!

Landscaping included

12' x 12' treated wood patio

Water supply for the refrigerator

Light fixtures 

60-gallon water heater

Wall-mounted heat pump

Black faucets

1 tree in front

Power supply for electric car charging station

Hardwood and ceramic flooring on the ground floor

Wood-look click vinyl and ceramic flooring upstairs

Carpeted staircase

Quartz kitchen countertops

600 CFM built-in range hood

Freestanding ceramic shower 

Ceramic shower niche 

Wall-mounted bathtub – Mirolin Hessa

Recessed LED exterior lights

Pre-designed home with no customization options for a hassle-free experience!

 

Mortgage Payment Calculator

Loan amount:

Monthly mortgage payment:

Loan amount:

781 500.00$

Monthly mortgage payment:

4 568.57$

Prices are subject to change without notice. Colors, materials, and interior images may vary.

The monthly payments shown by the mortgage calculator are for illustrative purposes only.